A229 | Lotto
BILOCALE ARREDATO CON CUCINA
Locazione
€ 1.200
Descrizione:
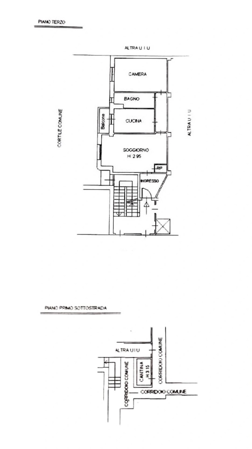
Bilocale ristrutturato in affitto in Via Carlo Dolci, situato in contesto tranquillo e ben servito. L’appartamento è composto da ingresso, soggiorno, camera da letto, cucina abitabile separata, bagno e balcone. Gli ambienti sono luminosi e ben distribuiti, con finiture moderne grazie alla recente ristrutturazione che rende l’immobile pronto da abitare. Completa la proprietà una cantina di pertinenza, ideale come spazio di deposito. Soluzione perfetta per single o coppie che cercano comfort e praticità in una zona comoda ai mezzi pubblici e ai principali servizi
Dettagli:
- Prezzo:€ 1.200
- Sp. Condominiali:€ 0
- Superficie:74 mq
- Anno di Costruzione:
- Piano:3 su 6 con ascensore
- Stato:Originale / Abitabile
- Camere:1
- Cucina:Abitabile
- Bagni:1
- Riscaldamento:-
- Condizionamento:-
- Classe energeticaE IPE: 116,64 kWh/mqa
Location:
Via Carlo Dolci


