T439 | Corsico
VENDESI QUADRILOCALE CON AMPIO TERRAZZO
Vendita
€ 420.000
Descrizione:
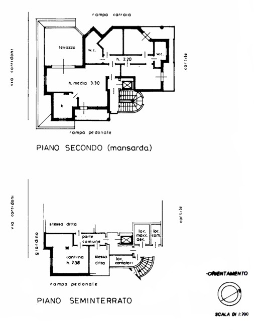
A Corsico, in zona residenziale molto tranquilla, proponiamo in vendita splendido attico con quadrupla esposizione ed ampio terrazzo al piano. L’appartamento, inserito in un contesto condominiale recente di sole 4 unità immobiliari, occupa interamente il secondo ed ultimo piano servito da ascensore. L'immobile, caratterizzato da ambienti luminosi, moderni e ben distribuiti, è composto da un ingresso che introduce in un luminoso living con un soffitto ad altezze variabili che creano uno scenografico effetto decorativo; l'ambiente è suddiviso in zona pranzo e zona salotto mediante un muretto divisorio in cartongesso, eventualmente removibile, la prima prospiciente un balcone a tutta parete affacciata su una rilassante area verde, la seconda valorizzata da un ampio terrazzo panoramico, ideale per momenti di convivialità e di relax. Il terrazzo è dotato di una tenda elettrica a totale copertura della superficie scoperta, che lo rende piacevolmente fruibile anche nelle giornate più calde. Dal living si accede inoltre alla cucina abitabile dotata di arredi su misura e completa di elettrodomestici. La zona notte, accessibile dal disimpegno d’ingresso, è caratterizzata da un corridoio che ben distribuisce le tre camere da letto, una matrimoniale e due camerette, una delle quali con soppalco portante, ideale come zona letto, e finestra Velux a garanzia di un'ottima luce naturale. Due delle tre camere da letto affacciano su un’ampia balconata con esposizione interna, che conferisce agli ambienti luminosità e tranquillità. La zona notte è completata da due bagni entrambi finestrati, il primo di dimensioni particolarmente ampie e con vasca idromassaggio, il secondo con doccia, e da un capiente ripostiglio ben sfruttabile anche in altezza. È presente inoltre un funzionale ulteriore spazio in quota di grande capienza realizzato con struttura portante – h circa 1,80 m, strategico per riporre oggetti poco usati, valigie o il cambio stagione. L'immobile è termoautonomo e dotato di impianto di antifurto. Libero subito. L’appartamento è parzialmente arredato anche con soluzioni d’arredo su misura che possono essere cedute all’acquirente in caso di interesse. Completa la proprietà una cantina doppia finestrata e di grande capienza situata al piano seminterrato accessibile anche con ascensore. Disponibili - in vendita separatamente - un box doppio o un box singolo nello stesso condominio al piano seminterrato servito da ascensore. La zona ha nelle vicinanze tutti i servizi essenziali, come scuole, farmacie, supermercati, ristoranti, parchi; nell'immediata prossimità il campo Matteotti, attualmente interessato da lavori di completa riqualificazione che termineranno a Maggio 2026, con nuovo campo da calcio, campo da basket e pista da corsa. Comodi e frequenti i collegamenti con Milano: a pochi minuti fermata dell'autobus 321 per Bisceglie MM1 o 326 per MM4 S. Cristoforo, inoltre stazione ferroviaria che collega Corsico a Milano-S. Cristoforo e Romolo a circa 100 metri.
Dettagli:
- Prezzo:€ 420.000
- Sp. Condominiali:€ 4.200
- Superficie:137 mq
- Anno di Costruzione:2000
- Piano:2 su 2 con ascensore
- Stato:Buono / Discreto
- Camere:3
- Cucina:Abitabile
- Bagni:2
- Riscaldamento:Autonomo
- Condizionamento:-
- Classe energeticaC IPE: 83,51 kWh/mqa
Location:
Via Corridoni, 2/A

